Chargement en cours
Rejoignez-nous !
Une question ?
Rejoignez-nous :
DP PROMOTION
  • 18 Rue de la Duchesse de Chartres
    60500 Vineuil-Saint-Firmin
  • 03 44 54 95 21

Domaine Le Petit Château

LABOISSIERE EN THELLE (60570)

À partir de 299000 €
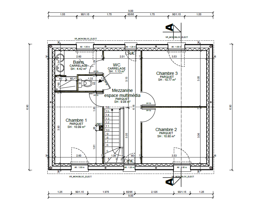
Sur la commune de LABOISSIERE EN THELLE, nous vous proposons, proche toutes commoditées, 8 maisons individuelles d'environ 97 m² comprenant, au rez-de-chaussée entrée sur séjour, cuisine ouverte, buanderie et WC, au premier étage, un dégagement, 3 chambres, une salle d'eau et un WC. Le TER permet de relier gare du Nord en 1 heure au départ de la gare de LABOISSIERE-LE DELUGE
LIVRABLE 1er trimestre 2024
Visite virtuelle sur demande 03.44.54.95.21 contact@dp-promotion.fr

Ce programme m'intéresse :

Nous appeler Demande d'informations

Prix & Plans DP PROMOTION

N° de lot
Surface
Étage
Prix
Orientation
Surface extérieure
Façades
Plan
8
97m²
299 000€
SUD
566m²
18.65
7
97m²
299 000€
SUD
575m²
20
6
97m²
299 000€
SUD
1797m²
21.10
5
97m²
299 000€
NORD OUEST
1635m²
19
4
97m²
299 000€
NORD OUEST
1465m²
18.90
2
97m²
299 000€
NORD
546m²
20.60
1
97m²
299 000€
NORD
511m²
19.30

Gestion des cookies

Ce site nécessite l'utilisation de cookies pour mesurer l'audience et offrir une experience utilisateur optimale. Vous pouvez à tout moment les accepter ou les refuser depuis notre page dédiée.

Erreur